Plan #T148

Calistoga I

Cagan Crossings West in Orlando, FL

Retreat to your luxurious primary suite upstairs with an oversized walk-in closet and dual sinks in the bath.

Estimated Completion for this home:
Now Available

Home Address:
16410 Bird of Paradise Avenue
CLERMONT, FL 34714
View Map

Tour This Home

Request a Tour
* required field
Tour Address
Preferred Date & Time *
Are you a homebuyer or an agent? *
Who is coming to the tour? *
Check all that apply

By agreeing to receive text messages, you agree to receive recurring automated promotional and transactional text messages, including 1:1 communications, from Meritage Homes at the cell number used when signing up. Consent is not a condition of any purchase. Reply HELP for help and STOP to cancel. Msg frequency varies. Msg & data rates may apply. View Terms & Privacy.

Request a Tour X
Thank you. We've received your request.
Request a Tour X
Sorry, an error occurred.

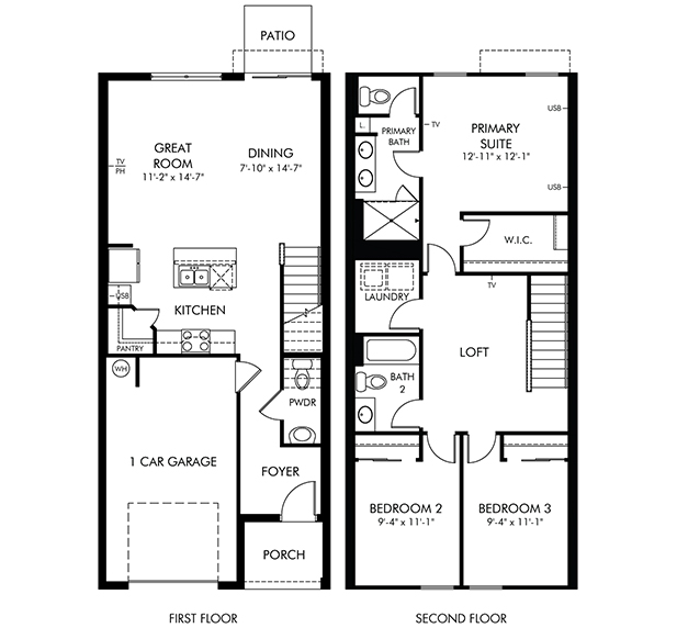
Floor plan for this Quick Move-In

A Quick Move-in means you don’t have to start from scratch (or dirt, in this case), plus, upgrades and design choices were made by our team of professional designers

ORL_Cagan-Crossings-West_T148-Calistoga-I-Web_JPEG.jpg
QMIElevationImage

All-in Monthly Payment Calculator

  • YOUR MONTHLY PAYMENT
  • Principal & Interest
  • Taxes
  • Home Insurance
  • PMI/MIP Rate
  • HOA Dues

This calculator and any related information are provided solely for general information purposes. Although the calculator may be a useful tool in evaluating certain financial information and assumptions provided by the user (all inputs, including any amounts provided as starting assumptions, are subject to user input/adjustment), it is not intended in any way as financial, securities, insurance, tax, or legal advice or services, and in no event should it be construed as a commitment to lend. Further, this calculator and any related information may not include all financial information relevant to any particular user/home financing transaction, loan programs and rates are subject to change and may not be available to any particular borrower or home financing transaction, and there often are other important considerations to any home buying / financing decision. Accordingly, this calculator and any related information are provided on an "AS IS" AND "AS AVAILABLE" BASIS WITHOUT REPRESENTATIONS OR WARRANTIES OF ANY KIND, EITHER EXPRESS OR IMPLIED, INCLUDING, WITHOUT LIMITATION, WARRANTIES OF SUITABILITY, MERCHANTABILITY, FITNESS FOR A PARTICULAR PURPOSE, AND NON-INFRINGEMENT. Meritage Homes does not assume any duty by making this calculator or any related information available, all of which duties are expressly disclaimed, and Meritage Homes shall not be responsible for any errors or omissions therein or the consequences of any decisions or actions taken in reliance thereon. Potential homebuyers / borrowers that desire information or guidance tailored to their specific situation should contact a relevant professional.

Ready to make the move?

See other Quick Move-in homes available in this community

A Quick Move-in Calistoga I Floorplan

Calistoga I

16394 Bird of Paradise Avenue CLERMONT, FL 34714

$339,785

Bed 3

Bath 2.5

1 Garage

Approx. 1,485 sq. ft.

View Quick Move-in plan #T148

A Quick Move-in Oakville Floorplan

Oakville

16342 Bird of Paradise Avenue CLERMONT, FL 34714

$377,975

Bed 3

Bath 2.5

2 Garage

Approx. 1,566 sq. ft.

View Quick Move-in plan #T156

All-in Monthly Payment Calculator

ALL-IN MONTHLY PAYMENT

This calculator and any related information are provided solely for general information purposes. Although the calculator may be a useful tool in evaluating certain financial information and assumptions provided by the user (all inputs, including any amounts provided as starting assumptions, are subject to user input/adjustment), it is not intended in any way as financial, securities, insurance, tax, or legal advice or services, and in no event should it be construed as a commitment to lend. Further, this calculator and any related information may not include all financial information relevant to any particular user/home financing transaction, loan programs and rates are subject to change and may not be available to any particular borrower or home financing transaction, and there often are other important considerations to any home buying / financing decision. Accordingly, this calculator and any related information are provided on an "AS IS" AND "AS AVAILABLE" BASIS WITHOUT REPRESENTATIONS OR WARRANTIES OF ANY KIND, EITHER EXPRESS OR IMPLIED, INCLUDING, WITHOUT LIMITATION, WARRANTIES OF SUITABILITY, MERCHANTABILITY, FITNESS FOR A PARTICULAR PURPOSE, AND NON-INFRINGEMENT. Meritage Homes does not assume any duty by making this calculator or any related information available, all of which duties are expressly disclaimed, and Meritage Homes shall not be responsible for any errors or omissions therein or the consequences of any decisions or actions taken in reliance thereon. Potential homebuyers / borrowers that desire information or guidance tailored to their specific situation should contact a relevant professional.

Thank you for your Interest in Meritage Homes

Your request has been received. You may modify your email preferences at any time by clicking “The Manage Preferences” link at the bottom of any email you receive from us.

Oops. Looks like something went wrong. Please try submitting again, or contact us at 844-860-7365 and we can help

Please try again later.

 

Please fill in the fields below and someone will follow up with you soon.

* Denotes a required field


I am a *
Homebuyer
Agent
I agree to receive text messages from Meritage Homes.
Location
Company information
Your question

By agreeing to receive text messages, you agree to receive recurring automated promotional and transactional text messages, including 1:1 communications, from Meritage Homes at the cell number used when signing up. Consent is not a condition of any purchase. Reply HELP for help and STOP to cancel. Msg frequency varies. Msg & data rates may apply. View Terms & Privacy.