Pacifica

New Homes in Oceanside, CA

MTH_Website_Sales Office_Icons_32x32-03.svg
Sales Office

Coming Soon, Oceanside, CA 92057

MTH_Website_Sales Office_Icons_32x32-04.svg
Connect with Us

Stay up to date on the latest information about this community.

Contact Us
Call (949) 456-8328

Welcome to Pacifica

Models Open March 2026! Introducing Pacifica, a new Oceanside, CA community of energy-efficient townhomes priced from the high $600,000s. Each home features Whirlpool® appliances, whole-home blinds, and 60-day quick-close timelines. Enjoy designer-curated finishes, smart home technology, and amenities including pickleball courts, dog park, playgrounds, and BBQ areas—all designed for a vibrant coastal lifestyle.

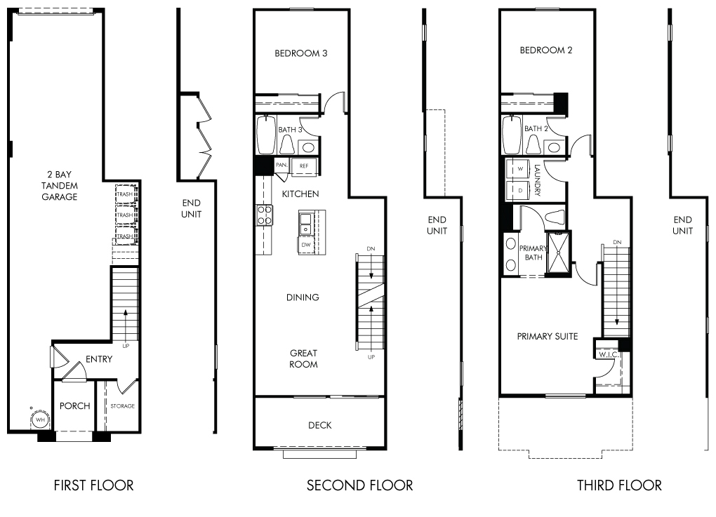
Explore our thoughtfully designed floorplans

Discover the floorplans currently under construction, each crafted to provide exceptional living spaces. While our homes’ floorplans and designs are meticulously selected before they're listed, we invite you to explore the inspired layouts we're bringing to life.

Map

Map

Amenities

Other
BBQ Grills
Other
Dog Park
Home Buying Guide Icon
Park
Other
Pickleball
Other
Playground

Nearby Schools

Oceanside Unified School District

Libby Elementary School

César Chávez Middle School

El Camino High School